店舗事務所


更新日:2025年12月12日 次回更新予定日:2025年12月26日
| 物件用途 | 店舗(小売・サービス)用 ロードサイド施設用 店舗用 | ||
|---|---|---|---|
| 所在地 | 福岡県春日市光町3丁目 | ||
| 交通 | JR鹿児島本線 春日駅 徒歩11分 西鉄天神大牟田線 春日原駅 徒歩19分 |
||
| 価格 | 8,980万円 | ||
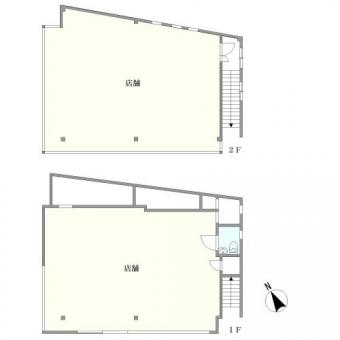
| 間取り | 店舗 総戸数:2戸 | ||
| 現行年間収入 | 3,300,000円 (2025年9月5日確認) |
現行利回り | 3.67% |
| 想定年間収入 | 5,940,000円 | 想定利回り | 6.61% |
| 賃貸状況 | 1階は月額賃料275,000円(税込)で賃貸中。2階は月額賃料220,000円(税込)で賃貸募集中。 | ||
| 現況 | 一部賃貸中 | 引渡し可能年月 | 即時 |
| 土地面積 | 157.20m2(47.5坪) 登記簿 | 建物延面積 | 208.91m2 |
| 構造/階建 | 鉄骨/2階建 | 建築年月 | 1990年2月 |
| 土地権利 | 所有権 | 地目 | 登記簿:宅地 現況:宅地 |
| 都市計画 | 市街化区域 | 用途地域 | 準住居地域 |
| 建ぺい率 | 60% | 容積率 | 200% |
| 駐車場 | 無 | ||
| 接道状況 | 角地 南西約18.1m公道、間口:約14.4m 北西約4.0m公道、間口:約12.3m | ||
| 設備・施設 | 公営水道、公共下水 | ||
| 設備・施設・ その他使用料 |
|||
| 取引態様 | 媒介 | ||
| 特記事項 | ■都市計画法他制限:第一種20m高度地区、建築基準法第22条区域、公有地拡大推進法、都市再生特別措置法:立地適正化計画における居住誘導区域内の都市機能誘導区域 | ||
| 備考 | ■2024年11月リフォーム済(2階部分の内部解体(スケルトン解体)工事、屋根修繕工事。2024年12月 外壁目地クラック補修、サッシ廻りシーリング打ち替え、屋根軒樋継目シーリング打ち。)建物名称:スクランブルビル ■投資用向き:1階は月額賃料275,000円(税込)で賃貸中。2階は月額賃料220,000円(税込)で賃貸募集中。 |
||
| 物件番号 | Smh250033 | ||