中古一戸建て


更新日:2025年12月9日 次回更新予定日:2025年12月23日
| 所在地 | 兵庫県西宮市甲子園口3丁目 | ||
|---|---|---|---|
| 交通 | JR東海道本線 甲子園口駅 徒歩5分 |
||
| 価格 | 5,280万円 | ||
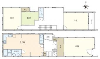
| 間取り | 3LDK | ||
| 土地面積 | 88.23m2(26.6坪) 登記簿 | 建物延面積 | 124.49m2 |
| 構造/階建 | 木造/2階建 | 建築年月 | 1995年10月 |
| 土地権利 | 所有権 | 地目 | 登記簿:宅地 |
| 都市計画 | 市街化区域 | 用途地域 | 近隣商業地域 |
| 建ぺい率 | 80% | 容積率 | 248% |
| 駐車場 | 無 | ||
| 接道状況 | 一方 | ||
| 設備・施設 | |||
| 設備・施設・ その他使用料金 |
|||
| 現況 | 空家 | 引渡し可能年月 | 相談 |
| 取引態様 | 媒介 | ||
| 特記事項 | |||
| 備考 | ・徒歩分数は80mを1分として算出した概算で、実際とは多少異なる場合があります。/設備:都市ガス、公営水道、本下水都市計画法他制限:準防火地域、第7種高度地区 |
||
| 物件番号 | NEA615003 | ||